2022.06.15
【ご成約ありがとうございます】





足立宮城Ⅰ 新築分譲住宅 全2棟
ADACHIMIYAGIⅠ ADACHIMIYAGIⅠ ADACHIMIYAGIⅠ ADACHIMIYAGIⅠ
こだわりの【収納・導線・間取】 屋上ルーフバルコニー付
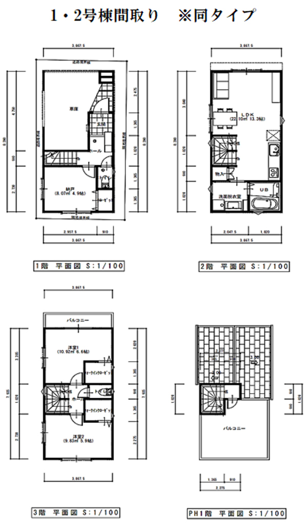
2SLDK+屋上+車庫1台
98.87㎡(約11.30㎡含)
土地
| 所在地 |
足立区宮城1-16-18 |
| 権利 |
所有権 |
| 地目 |
宅地 |
| 用途地域 |
準工業地域 |
| 地域・地区 |
第三種高度・準防火地域 |
| 建蔽率 |
60% |
| 容積率 |
200% |
| 接道 |
北側公道8.0m・西側私道4.0m |
| 土地面積 |
46.89㎡ |
| 間取り |
2SLDK |
建物
| 建築確認番号 |
1号棟第KBI-SGM21-10-4410号 2号棟第KBI-SGM21-10-4468号 |
| 施工会社 |
㈱オープンハウス・アーキテクト |
| 構造 |
木造3階建て |
| 建物面積 |
98.87㎡ 1階32.44㎡(内カースペース約11.30㎡) 2階32.44㎡、3階30.68㎡、屋上3.31㎡ |
| 間取り |
3LDK |
| 現況 |
空室 |
| 築年 |
2022年4月末完成 |
| |
東京電力、都市ガス、公共下水 |
【引渡・備考】
●司法書士当社指定
●引渡/残代金支払後即可
●TVアンテナ・網戸・照明器具・カーテンレール・面格子・エアコン等は付きません。
●フラット35S利用における各証明書取得代金が必要となります。
●図面と現況が異なる場合、現況優先
【LIFE INFORMATION】
■白百合保育園・・・・・・・約 40m 歩約1分
■宮城ファミリー公園・・・・約130m 歩約2分
■南宮城公園・・・・・・・・約300m 歩約4分
■宮城小学校・・・・・・・・約360m 歩約5分
■江南中学校・・・・・・・・約220m 歩約3分
■足立宮城局(郵便局)・・・・約370m 歩約5分
■セブンイレブン・・・・・・約420m 歩約1分
■コモディイイダ・・・・・・約540m 歩約7分
■ビバホーム・・・・・・・・約720m 歩約9分
■グルメシティ豊島団地店・・約960m 歩約12分
■島忠・OKストア・・・・・・約1480m 歩約19分